Вход | Регистрация | Забыли пароль?
Страницы: 1 2
БТИ и структура квартир
Житель
Сообщений: 110
Регистрация: 27.02.2011
Статус: offline
Корпус: 6-1
Этаж: 24
Рейтинг: 10 ()
Написано: 12.03.2011, 20:37 | Полезность: -1
   #1
В этой теме хочу что бы все разместили свои чертежи разметок квартир. Их длину, ширину, размеры перегородок, в общем то, что выдаёт бюро технической инвентаризации на руки владельцам одно-, двух-, трёхкомнатных квартир и студий.

Сканы и фото приветствуются )
Коренной житель
Сообщений: 427
Регистрация: 05.02.2011
Статус: offline
Корпус: 1-3
Рейтинг: 15 ()
Написано: 12.03.2011, 21:28 | Полезность: 0
   #2
Почетный житель
Сообщений: 1047
Регистрация: 09.12.2010
Статус: offline
Рейтинг: 37 ()
Написано: 12.03.2011, 22:19 | Полезность: 0
   #3
Разве с документами на право собственности Магистрат выдает и паспорта БТИ???
Заказывать его надо собственнику дополнительно, а сейчас заказывать нет смысла...я продавать свою квартиру не собираюсь.
Так что мало у кого он есть! Кто купил для перепродажи-отзовитесь и опубликуйте свои паспорта БТИ
Коренной житель
Сообщений: 301
Регистрация: 02.02.2011
Статус: offline
Корпус: 1-3
Секция: 2
Этаж: 14
Рейтинг: 9 ()
Написано: 12.03.2011, 22:37 | Полезность: 0
   #4
Vlad писал(а):
Разве с документами на право собственности Магистрат выдает и паспорта БТИ???
Заказывать его надо собственнику дополнительно, а сейчас заказывать нет смысла...я продавать свою квартиру не собираюсь.
Так что мало у кого он есть! Кто купил для перепродажи-отзовитесь и опубликуйте свои паспорта БТИ
Вы абсолютно правы!
Коренной житель
Сообщений: 334
Регистрация: 09.03.2011
Статус: offline
Рейтинг: 1 ()
Написано: 16.03.2011, 14:15 | Полезность: 0
   #5
кто как поступил с перегородкой в 1к кваритрах 37м.кв при входе в комнату, которая на чертежах есть, а по факту ее нет???
Почетный житель
Сообщений: 1470
Регистрация: 16.10.2010
Статус: offline
Корпус: 1-4
Секция: 2
Этаж: 10
Рейтинг: 10 ()
Написано: 16.03.2011, 17:18 | Полезность: 0
   #6
такие по типу перегородки есть в разной степени во всех типах квартир)
Житель
Сообщений: 110
Регистрация: 27.02.2011
Статус: offline
Корпус: 6-1
Этаж: 24
Рейтинг: 10 ()
Написано: 16.03.2011, 21:47 | Полезность: 0
   #7
Первая фотка планировки этажа. Взята из поста Loki



На ней можно просмотреть размеры стен и перегородок.
Добавлено 16.03.2011 в 21:50
Вторая фотка. Разметка студии.

Добавлено 16.03.2011 в 21:53
Осталось добавить однокомнатную (два-три варианта с разными площадями), двух- и трёхкомнатные.
Почетный житель
Сообщений: 1115
Регистрация: 13.01.2011
Статус: offline
Рейтинг: 3 ()
Написано: 16.03.2011, 23:21 | Полезность: -1
   #8
sezam
Первая фотка взята из моего поста))
Житель
Сообщений: 110
Регистрация: 27.02.2011
Статус: offline
Корпус: 6-1
Этаж: 24
Рейтинг: 10 ()
Написано: 16.03.2011, 23:31 | Полезность: 0
   #9
Хоть какая-то разметка ...
Настоящий житель
Сообщений: 758
Регистрация: 19.04.2011
Статус: offline
Корпус: 3-7
Секция: 2
Этаж: 8
Рейтинг: 42 ()
Написано: 30.05.2011, 13:59 | Полезность: 0
   #10
У кого есть на однушку 37 м, плиз
Житель
Сообщений: 110
Регистрация: 27.02.2011
Статус: offline
Корпус: 6-1
Этаж: 24
Рейтинг: 10 ()
Написано: 30.05.2011, 17:48 | Полезность: 0
   #11
мне самому нужна разметка на 37 метров
Коренной житель
Сообщений: 334
Регистрация: 09.03.2011
Статус: offline
Рейтинг: 1 ()
Написано: 31.05.2011, 12:09 | Полезность: 0
   #12
Выкладываю планировку 1к 37м.кв, фото прдедоставлено пользователем Vlad:
Настоящий житель
Сообщений: 758
Регистрация: 19.04.2011
Статус: offline
Корпус: 3-7
Секция: 2
Этаж: 8
Рейтинг: 42 ()
Написано: 31.05.2011, 13:59 | Полезность: 0
   #13
maxclub61
Респект, спасибо!
Дом пока не заселен, в августе сдача, но руки чешутся проект планировки составить ))
Новосел
Сообщений: 1
Регистрация: 05.04.2015
Статус: offline
Рейтинг: 10 ()
Написано: 09.04.2015, 01:18 | Полезность: 0
   #14
Нигде не могу найти планировку 2-ки 72кв. (евротрешка)))) в башне с линейными размерами. Это в принципе есть?
Коренной житель
Сообщений: 209
Регистрация: 19.07.2012
Статус: offline
Рейтинг: 16 ()
Написано: 09.04.2015, 08:39 | Полезность: 0
   #15
Обмерный план 3-ки - 69 м2
Настоящий житель
Сообщений: 587
Регистрация: 02.06.2013
Статус: offline
Корпус: 3-33
Секция: 3
Этаж: 33
Рейтинг: 22 ()
Написано: 09.04.2015, 10:07 | Полезность: 0
   #16
eldisign писал(а):
Нигде не могу найти планировку 2-ки 72кв. (евротрешка)))) в башне с линейными размерами. Это в принципе есть?
В каком доме?
Настоящий житель
Сообщений: 471
Регистрация: 24.03.2015
Статус: offline
Рейтинг: 16 ()
Написано: 09.04.2015, 16:09 | Полезность: 0
   #17
кто нибудь видел планировку подвальных помещений в домах ?
Настоящий житель
Сообщений: 506
Регистрация: 09.11.2014
Статус: offline
Рейтинг: 12 ()
Написано: 09.04.2015, 20:38 | Полезность: 0
   #18
eldisign писал(а):
Нигде не могу найти планировку 2-ки 72кв. (евротрешка)))) в башне с линейными размерами. Это в принципе есть?
А в Магистрате не давали при заключении договора? Всего этажа? Там вроде как все размеры... Вот картинка, где желтым маркером квартира обведена - как раз из такого плана.

Вам которую - где дверь в ванную возле входной двери, или где дверь в ванную смотрит на кухню и комнату? У меня весь этаж есть, но не знаю, что с качеством будет, если скан сделаю - там и так не очень...

О! Первая "евротрешка" в ветке 3-9 на 7-ой странице есть (правда выше 12 этажа).
Добавлено 09.04.2015 в 21:00
http://www.wgates.ru/forum/topic.php?id=246&p=7
Настоящий житель
Сообщений: 587
Регистрация: 02.06.2013
Статус: offline
Корпус: 3-33
Секция: 3
Этаж: 33
Рейтинг: 22 ()
Написано: 09.04.2015, 22:13 | Полезность: 0
   #19
eldisign писал(а):
Нигде не могу найти планировку 2-ки 72кв. (евротрешка)))) в башне с линейными размерами. Это в принципе есть?
Да, в принципе есть. Посмотрите чертежи башни 3-13. Может быть это то что вам нужно.
Новосел
Сообщений: 28
Регистрация: 30.04.2015
Статус: offline
Этаж: 8
Рейтинг: -3 ()
Написано: 14.05.2015, 06:43 | Полезность: 0
   #20
Требуется копия тех.паспорта из бти. Подскажите, куда идти и что с собой брать? Где находится бти?
Почетный житель
Сообщений: 1042
Регистрация: 30.01.2012
Статус: offline
Корпус: 3-12
Секция: 2
Этаж: 3
Рейтинг: 40 ()
Написано: 18.05.2015, 14:08 | Полезность: 0
   #21
S2dent писал(а):
Требуется копия тех.паспорта из бти. Подскажите, куда идти и что с собой брать? Где находится бти?
БТИ находится на Зорге 17. Погуглите, найдите телефон и проконсультируйтесь насчет документов. Я уже не помню, что нужно для техпаспорта.
Новосел
Сообщений: 2
Регистрация: 16.06.2015
Статус: offline
Корпус: 6-7
Рейтинг: 10 ()
Написано: 19.06.2015, 00:07 | Полезность: 0
   #22
Очень нужны линейные размеры 3-ки 76,5 кв. Помогите, кто чем может!))
Настоящий житель
Сообщений: 587
Регистрация: 02.06.2013
Статус: offline
Корпус: 3-33
Секция: 3
Этаж: 33
Рейтинг: 22 ()
Написано: 20.06.2015, 09:31 | Полезность: 0
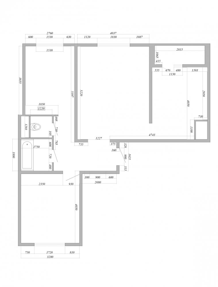
   #23
Rejtamira писал(а):
Очень нужны линейные размеры 3-ки 76,5 кв. Помогите, кто чем может!)
Есть размеры симметричной квартиры корпуса 6-8, может пригодятся:

Новосел
Сообщений: 2
Регистрация: 16.06.2015
Статус: offline
Корпус: 6-7
Рейтинг: 10 ()
Написано: 23.06.2015, 14:55 | Полезность: 0
   #24
PhotoShopRND, спасибо, большое! То, что нужно
Новосел
Сообщений: 1
Регистрация: 25.10.2016
Статус: offline
Корпус: 6-8
Секция: 4
Этаж: 10
Рейтинг: 10 ()
Написано: 28.12.2016, 01:51 | Полезность: 0
   #25
Подскажите,а эти перегородки в 1-ке,что пунктиром обозначены,их в обязательном порядке нужно возводить? Если их не будет,это будет перепланировка?
Страницы: 1 2 ПОДПИСАТЬСЯ НА ТЕМУ


 
Яндекс.Погода
Пользовательское соглашение | Размещение рекламы
Copyright © www.wgates.ru, 2010