Вход | Регистрация | Забыли пароль?
Страницы: 1 2 3 4 5 6 7 8 9 10 ... 31 32 33
Строительство социальных объектов
В бане
Сообщений: 457
Регистрация: 26.01.2011
Статус: offline
Корпус: 6-7
Этаж: 5
Рейтинг: 2 ()
Написано: 22.03.2013, 01:05 | Полезность: 0
   #101
мы по прописке относимся к 112 школе.туда и пойдем учиться пока нашу не построят...
--- Реклама ---
Коренной житель
Сообщений: 378
Регистрация: 08.08.2012
Статус: offline
Рейтинг: 0 ()
Написано: 22.03.2013, 11:31 | Полезность: 0
   #102
А если по прописке относишься к школе X, то по проиходу в школу X тебе не могут отказать в приеме? Как это сейчас?
Я просто сам поступал в школу, когда еще Майкл Джексон был молодым...
Новосел
Сообщений: 25
Регистрация: 06.02.2013
Статус: offline
Корпус: 3-14
Секция: 7
Этаж: 11
Рейтинг: 15 ()
Написано: 23.03.2013, 00:11 | Полезность: 0
   #103
Спасибо. Будем наводить справки.
Почетный житель
Сообщений: 1100
Регистрация: 18.03.2011
Статус: offline
Корпус: 3-8
Секция: 1
Рейтинг: 10 ()
Написано: 23.03.2013, 22:57 | Полезность: 0
   #104
Krab
Школа 112, к которой относится наш мкр, не плохая, но... До нее, как и до гимназий 117 и 103, - 4 щстановки автобуса 26 (детская обл. Больница), а в Левенцовке в 2015 обещали только начать строительство школы...
Почетный житель
Сообщений: 1215
Регистрация: 13.10.2012
Статус: offline
Корпус: 3-10
Секция: 1
Рейтинг: 66 ()
Написано: 26.03.2013, 08:56 | Полезность: +1
   #105
Объявили победителя тендера на разработку проекта взрослой поликлиники в 3-ем МКР. Им стала компания ООО "Кортэк-проект".
Новосел
Сообщений: 6
Регистрация: 26.03.2013
Статус: offline
Корпус: 1-5
Рейтинг: 10 ()
Написано: 26.03.2013, 10:42 | Полезность: 0
   #106
За что спасибо губернатору???????????? Ростовчанин, ты вообще не в курсе дела кто в доме хозяин. деньги на строительство детских садиков, школ, и поликлиник в Ростове-на-Дону дает город, в лице Чернышева М.А. А губернатор со своими детскими садиками по области сел в лужу и теперь кричит, что все сады в Ростове это его заслуга. В губернаторский перечень строительства 100 детских садов до 2015 года ни один детсад Ростова не вошел.
А в остальном Ростовчанин прав, на Левенцовке дела с социальной инфраструктурой сдвинулись с мертвой точки и наш микрорайон очень даже красивый.
Почетный житель
Сообщений: 1215
Регистрация: 13.10.2012
Статус: offline
Корпус: 3-10
Секция: 1
Рейтинг: 66 ()
Написано: 26.03.2013, 10:43 | Полезность: +2
   #107
Решение Правительства РО "Об итогах социально-экономического развития Ростовской области за 2012 год и задачах на 2013 год" №3 от 13.02.2013

...37. Рекомендовать мэру г. Ростова-на-Дону Чернышеву М.А. завершить в срок до 20.12.2013 оформление земельного участка, расположенного в микрорайоне «Левенцовский», для последующей организации в установленном порядке кооперативного рынка и постоянно действующей сельскохозяйственной ярмарки.

Видимо здесь и будет строительный рынок. Что касается с/х ярмарки, то новость на мой взгляд хорошая, если это будет в павильоне.
Коренной житель
Сообщений: 181
Регистрация: 03.12.2012
Статус: offline
Корпус: 3-14
Секция: 7
Рейтинг: 20 ()
Написано: 26.03.2013, 16:47 | Полезность: +5
   #108
jaxx писал(а):
то новость на мой взгляд хорошая, если это будет в павильоне.
А на мой взгляд новость ужасная. Вспомним рынок на Сиверса- бешеное количество машин, колхозный рынок, алмаз, фортуна... Везде где находится крупный рынок транспортный коллапс. Вы забываете, что люди со всего города и ближайших окрестностей будут ехать к нам. А какие варианты местоположения рынков?! Либо за "Кландайком" либо за 3м микрорайоном. Если за "Клодайком" то Доватора превратится в огромную вечную пробку. И еще Вы не учитываете, что всем приехавшим на рынок надо где то парковать свои машины, а учитывая тот факт, что парковки в нашем городе строить не привыкли соседние с рынком дворы и улочки станут одной большой парковкой
Почетный житель
Сообщений: 1215
Регистрация: 13.10.2012
Статус: offline
Корпус: 3-10
Секция: 1
Рейтинг: 66 ()
Написано: 26.03.2013, 16:56 | Полезность: +4
   #109
ErroR
С/х ярмарка проводится 1 день в неделю, по субботам. Или у Дворца спорта, или на Кировском у Ипподрома. Там действительно торгуют только производители. Такое мероприятие уникально для Ростова.

Что касается рынка Сиверса - я уже свою позицию высказывал - это полный п№;%";;%
Коренной житель
Сообщений: 181
Регистрация: 03.12.2012
Статус: offline
Корпус: 3-14
Секция: 7
Рейтинг: 20 ()
Написано: 26.03.2013, 17:11 | Полезность: +1
   #110
jaxx писал(а):
ErroR
С/х ярмарка проводится 1 день в неделю, по субботам. Или у Дворца спорта, или на Кировском у Ипподрома. Там действительно торгуют только производители. Такое мероприятие уникально для Ростова.

Что касается рынка Сиверса - я уже свою позицию высказывал - это полный п№;%";;%
Ну если только один день в неделю ярмарка то пережить это нашествие можно, а вот Сиверса, тут я с вами согласен, п№;%:;№"
--- Реклама ---
В бане
Сообщений: 213
Регистрация: 12.01.2013
Статус: offline
Корпус: 1-3
Рейтинг: -82 ()
Написано: 26.03.2013, 21:03 | Полезность: +1
   #111
Виктор9 писал(а):
За что спасибо губернатору???????????? Ростовчанин, ты вообще не в курсе дела кто в доме хозяин. деньги на строительство детских садиков, школ, и поликлиник в Ростове-на-Дону дает город, в лице Чернышева М.А. А губернатор со своими детскими садиками по области сел в лужу и теперь кричит, что все сады в Ростове это его заслуга. В губернаторский перечень строительства 100 детских садов до 2015 года ни один детсад Ростова не вошел.
А в остальном Ростовчанин прав, на Левенцовке дела с социальной инфраструктурой сдвинулись с мертвой точки и наш микрорайон очень даже красивый.
Вот на Темере с инфраструктурой значительно лучше и быстрее чем у нас.Сдают гипер "Магнит" на днях,
заканчивают строить детский сад,а у нас все слишком медленно.Садик в лучшем случае в конце года.
Про школу пока одни слухи
Коренной житель
Сообщений: 343
Регистрация: 14.12.2012
Статус: offline
Корпус: 3-14
Секция: 8
Рейтинг: 11 ()
Написано: 27.03.2013, 00:21 | Полезность: +2
   #112
Ростовчанин писал(а):
Виктор9 писал(а):
За что спасибо губернатору???????????? Ростовчанин, ты вообще не в курсе дела кто в доме хозяин. деньги на строительство детских садиков, школ, и поликлиник в Ростове-на-Дону дает город, в лице Чернышева М.А. А губернатор со своими детскими садиками по области сел в лужу и теперь кричит, что все сады в Ростове это его заслуга. В губернаторский перечень строительства 100 детских садов до 2015 года ни один детсад Ростова не вошел.
А в остальном Ростовчанин прав, на Левенцовке дела с социальной инфраструктурой сдвинулись с мертвой точки и наш микрорайон очень даже красивый.
Вот на Темере с инфраструктурой значительно лучше и быстрее чем у нас.Сдают гипер "Магнит" на днях,
заканчивают строить детский сад,а у нас все слишком медленно.Садик в лучшем случае в конце года.
Про школу пока одни слухи
По мне так лучше на Западном потихоньку инфраструктуру ждать чем часами по Северному в пробках стоять,
Новосел
Сообщений: 17
Регистрация: 04.03.2012
Статус: offline
Корпус: 1-1
Секция: 1
Рейтинг: -65 ()
Написано: 27.03.2013, 07:43 | Полезность: -4
   #113
А мне нравится, если будет сх рынок! В окее овощи ужасные, приходится ждать, пока машины будут опять стоять на районе с нормальнымт овощами
Новосел
Сообщений: 6
Регистрация: 26.03.2013
Статус: offline
Корпус: 1-5
Рейтинг: 10 ()
Написано: 27.03.2013, 21:49 | Полезность: +2
   #114
ПОСТАНОВЛЕНИЕ


23.10.2012 № 915

Об утверждении проекта планировки и проекта межевания территории коммунальной зоны Левенцовского жилого района в границах: линия регулирования застройки по южной стороне ул. Доватора, магистрали № 7, № 6 и 1-ый проезд Левенцовского жилого района

почитайте это постановление, здесь указанны все пятна между Доватора и Жданова и что на них будет находится. По поводу множества многоуровневых парковок я конечно сомневаюсь что они появятся, но то что это постановление сделали для того чтоб разместить 1150 гаражей (которые уже строятся на границе с 3-м микрорайоном это факт. И ЭТО УЖАСНО!
Житель
Сообщений: 144
Регистрация: 20.12.2012
Статус: offline
Рейтинг: 4 ()
Написано: 27.03.2013, 21:59 | Полезность: +3
   #115
рынок с Сиверса к нам в район это тоже ужасно!!! смотрел в новостях, что его именно сюда
Новосел
Сообщений: 4
Регистрация: 09.03.2013
Статус: offline
Рейтинг: 10 ()
Написано: 29.03.2013, 22:18 | Полезность: +1
   #116
Прочитала статью в газете, школу действительно собираются начать строить только в 2015 году, это в каком же году дети смогут в неё пойти.....я в шоке......
В бане
Сообщений: 213
Регистрация: 12.01.2013
Статус: offline
Корпус: 1-3
Рейтинг: -82 ()
Написано: 29.03.2013, 22:39 | Полезность: 0
   #117
lisa писал(а):
Прочитала статью в газете, школу действительно собираются начать строить только в 2015 году, это в каком же году дети смогут в неё пойти.....я в шоке......
Зато тут особо умные говорят,что лучше все пусть потихоньку развивается,
лишь бы пробок не было.Думают,что у них две жизни и во второй их
жизни будет школа.
Почетный житель
Сообщений: 1100
Регистрация: 18.03.2011
Статус: offline
Корпус: 3-8
Секция: 1
Рейтинг: 10 ()
Написано: 30.03.2013, 15:54 | Полезность: 0
   #118
а кто в курсе, что строится в з мкр напротив остановки, у дороги, между домами 3-8 и 3-10?
По плану там должен быть высотный дом - свечка. Не его ли это строят?
Коренной житель
Сообщений: 378
Регистрация: 08.08.2012
Статус: offline
Рейтинг: 0 ()
Написано: 30.03.2013, 21:47 | Полезность: +1
   #119
Наверное лучше ответить: его
Новосел
Сообщений: 6
Регистрация: 26.03.2013
Статус: offline
Корпус: 1-5
Рейтинг: 10 ()
Написано: 01.04.2013, 14:15 | Полезность: 0
   #120
abris344 писал(а):
а кто в курсе, что строится в з мкр напротив остановки, у дороги, между домами 3-8 и 3-10?
По плану там должен быть высотный дом - свечка. Не его ли это строят?
Имено так, в этом году планируется начать строительство корпуса 3-9.
Почетный житель
Сообщений: 1215
Регистрация: 13.10.2012
Статус: offline
Корпус: 3-10
Секция: 1
Рейтинг: 66 ()
Написано: 02.04.2013, 11:15 | Полезность: +13
   #121
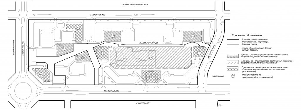
Город утвердил проект планировки и проект межевания III микрорайона жилого района «Левенцовский» (постановление 330 от 29.03.2013)




Дом 3-9 будет 25-ти этажной (ого!) свечкой на 165 квартир. Дом 3-11 такой же, но 21 этаж, 141 квартира.
Между 3-3 и 3-4 будет подземная 3-х уровневая автостоянка на 410 машиномест.
Что касается соц.объектов, то все без изменений: 3 дет.сада, школа и поликлиника для взрослых.
Добавлено 02.04.2013 в 11:57
Постановлением мэра Ростова №310 от 22.03.2013 определены сроки строительства детских садов в 3-ем МКР:

Детский сад (п.3-18) на 125 мест - начало ноябрь 2013, окончание ноябрь 2014.
Детский сад (п. 3-19) на 95 мест - начало ноябрь 2013, окончание ноябрь 2014.
Детский сад (п.3-20) на 125 мест - начало сентябрь 2013, окончание октябрь 2014.

Садик с начальной школой во 2-ом МКР будет строить Минестерство внутренних дел, окончание работ октябрь 2015 г.
Почетный житель
Сообщений: 1215
Регистрация: 13.10.2012
Статус: offline
Корпус: 3-10
Секция: 1
Рейтинг: 66 ()
Написано: 04.04.2013, 14:12 | Полезность: +5
   #122
В мэрии состоялись публичные слушания по исполнению бюджета за 2012 г.

По тексту: По словам заместителя главы Администрации города – директора Департамента строительства Владимира Иванова, в минувшем году велось проектировании шести новых дошкольных учреждений, которые в ближайшее время будут построены в новом районе Левенцовский, в микрорайоне Темерник и на ул. Плужной в Первомайском районе.

В целом на развитие системы образования в текущем году будет направлена беспрецедентная сумма - 7,3 млрд. рублей. Часть этих средств пойдет именно на решение проблемы нехватки мест в детсадах города. Если в прошлом году сеть детских дошкольных учреждений была расширена на 1050 мест, то в этом году планируется создать 2540 мест.

Причем дополнительные места будут созданы не только благодаря строительству новых детсадов, но и переводу на баланс муниципалитета ведомственных детсадов, капитальному ремонту и созданию дошкольных групп полного дня. К 2016 году в дошкольных учреждениях города должно дополнительно появиться 4 тысячи мест, благодаря чему в Ростове будет полностью снята проблема очередей в детские сады.

Почетный житель
Сообщений: 1215
Регистрация: 13.10.2012
Статус: offline
Корпус: 3-10
Секция: 1
Рейтинг: 66 ()
Написано: 25.04.2013, 10:26 | Полезность: +3
   #123
Постановление Мэра Ростова-на-Дону №424 от 23/04/2013

По тексту:
"Разрешить организацию ярмарки выходного дня ООО «Фортуна-1» (ИНН 6168034882) по адресу: Левенцовский проезд №2 (площадка), с 20.04.2013 по 31.12.2013.
Режим работы ярмарки с 9-00 до 17-00 часов.
Количество торговых мест - 2000."


Вообщем, не знаю что и сказать... Фортуну не только не убрали, но и расширили.
Житель
Сообщений: 101
Регистрация: 12.02.2012
Статус: offline
Рейтинг: -4 ()
Написано: 25.04.2013, 10:49 | Полезность: 0
   #124
А про школу ничего не слышно?
Почетный житель
Сообщений: 1215
Регистрация: 13.10.2012
Статус: offline
Корпус: 3-10
Секция: 1
Рейтинг: 66 ()
Написано: 25.04.2013, 10:56 | Полезность: 0
   #125
Герман писал(а):
А про школу ничего не слышно?
По школе по-прежнему идет разработка документации, 23/04 заключили некое доп соглашение с "Континентом", его содержимое мне неизвестно.
--- Реклама ---
Страницы: 1 2 3 4 5 6 7 8 9 10 ... 31 32 33 ПОДПИСАТЬСЯ НА ТЕМУ


 
Яндекс.Погода
Пользовательское соглашение | Размещение рекламы
Copyright © www.wgates.ru, 2010