Сведения о функциональном назначении объекта капитального строительства
«Строительство детского сада на 140 мест в I МКР жилого района «Левенцовский»
Здание детского сада запроектировано трехэтажным с подвалом и
рассчитано для размещения 140 детей (7 групп дошкольного возраста):
одна младшая группа возраста от 3-х до 4-х лет;
две среднего возраста от 4-х до 5-ти лет;
две старшего возраста от 5-ти до 6-ти лет;
две подготовительные группы от 6-ти до 7-ми лет.
Наполняемость групп дошкольного возраста – 20 детей.
Режим работы учреждения – дневное пребывание детей с двумя выходными днями (305 дней в году)
Штат детского сада составляет 35 человек, в том числе 4 человека в пищеблоке, 2 в постирочной.
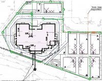
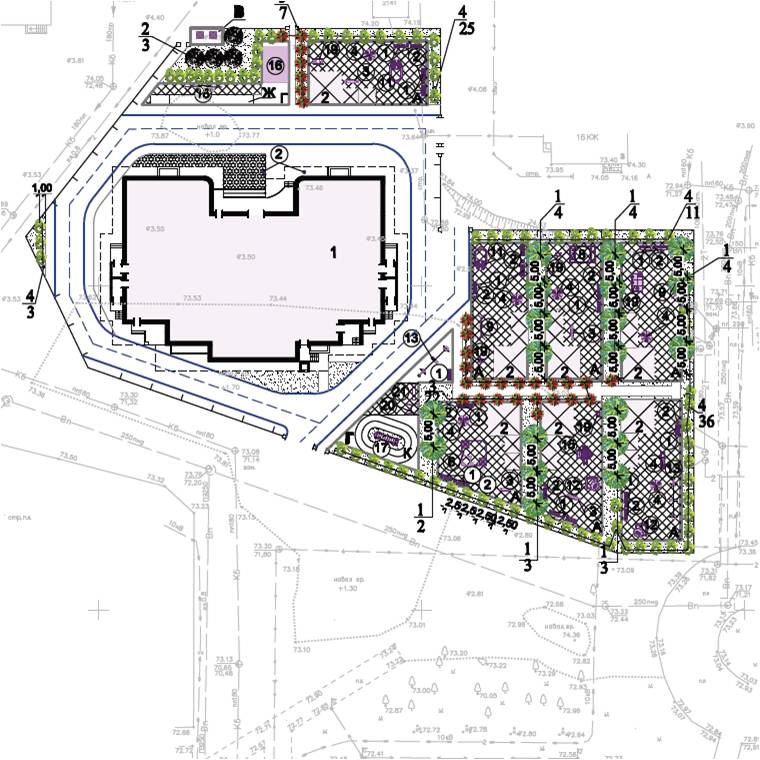
На участке размещаются: здание детского сада, групповые площадки (1 260м2),
площадка для занятий физкультурой (250,00м2), хозяйственная площадка (85,50м2), площадка для выращивания овощных и ягодных культур (111,00м2).
Здание имеет П- образную форму в плане (ориентировано главным фасадом на юго-запад).
Центральным акцентом в архитектурной композиции фасадов являются витражи спортивного зала и лестничной клетки.
Отделка фасада решена чередованием кладки из кирпича двух цветов, с применением облицовочной плитки под кирпич третьего цвета.
Информация о размещении заказа:
Общий срок выполнения всего комплекса работ, предусмотренных контрактом 9,5 месяцев




